有限会社ビックス

中古住宅 富士見ニュータウン第1期 1LDK

有限会社ビックス

中古住宅 富士見ニュータウン第1期 1LDK

HOME | 買いたい 土地・住宅・マンション | 新築住宅・中古住宅・店舗事務所 | 中古住宅 富士見ニュータウン第1期 1LDK

中古住宅 伊豆の国市韮山多田 1LDK

伊豆箱根「韮山」駅車13分・富士見ニュータウン第1期・温泉利用可・富士山駿河湾大瀬崎一望

中古住宅 伊豆の国市韮山多田 1LDK

伊豆箱根「韮山」駅車13分・富士見ニュータウン第1期・温泉利用可・富士山駿河湾大瀬崎眺望
所在地 伊豆の国市韮山多田 価格
1,500万円 間取り 1LDK
土地面積 302.00㎡(91.35坪) 建物面積
119.23㎡(36.06坪) 交通 伊豆箱根「韮山」駅車13分
所在地 伊豆の国市韮山多田
価格 1,500万円
間取り 1LDK
土地面積 302.00㎡(91.35坪)
建物面積 119.23㎡(36.06坪)
交通 伊豆箱根「韮山」駅車13分
1LDK   敷地300㎡ 以上   別荘に最適   日当り良好   富士山
1LDK   敷地300㎡ 以上   日当り良好   別荘に最適
富士山
 
 
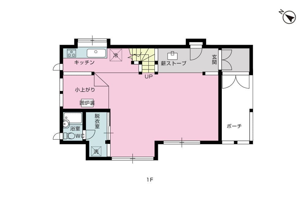
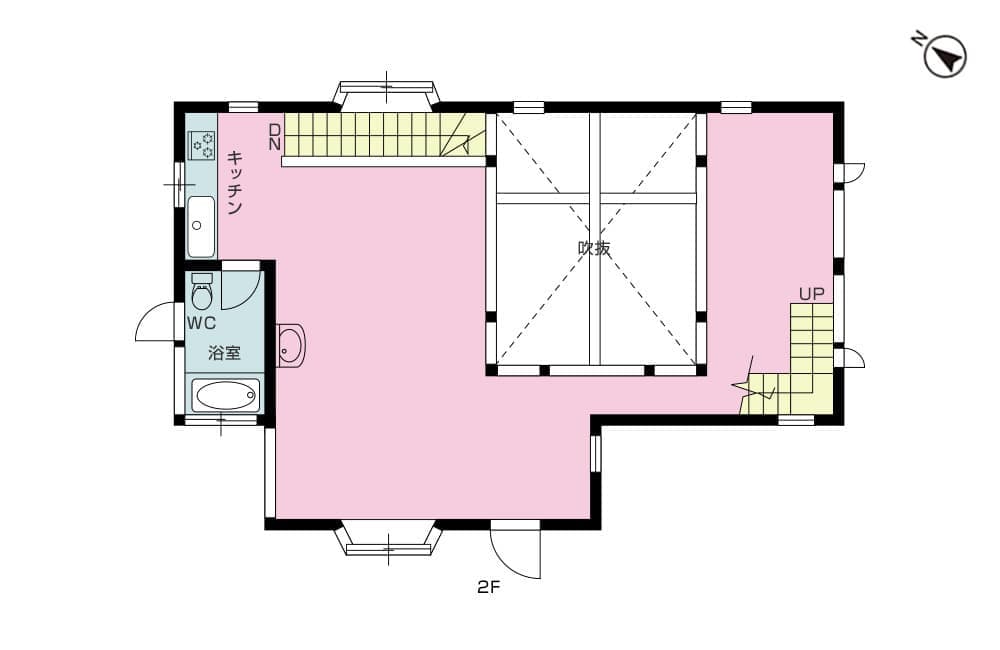
中古住宅・中古一戸建て 伊豆の国市韮山多田(富士見ニュータウン第1期)1LDK 建物外観(西側より) 中古住宅・中古一戸建て 伊豆の国市韮山多田(富士見ニュータウン第1期)1LDK 1F間取図*図面と現況が異なる場合には、現況を優先します。 中古住宅・中古一戸建て 伊豆の国市韮山多田(富士見ニュータウン第1期)1LDK 2F間取図*図面と現況が異なる場合には、現況を優先します。 中古住宅・中古一戸建て 伊豆の国市韮山多田(富士見ニュータウン第1期)1LDK 小屋裏間取図*図面と現況が異なる場合には、現況を優先します。 中古住宅・中古一戸建て 伊豆の国市韮山多田(富士見ニュータウン第1期)1LDK 建物外観(西側より) 中古住宅・中古一戸建て 伊豆の国市韮山多田(富士見ニュータウン第1期)1LDK 建物外観(南側より) 中古住宅・中古一戸建て 伊豆の国市韮山多田(富士見ニュータウン第1期)1LDK 建物外観(北側より) 中古住宅・中古一戸建て 伊豆の国市韮山多田(富士見ニュータウン第1期)1LDK ポーチ 中古住宅・中古一戸建て 伊豆の国市韮山多田(富士見ニュータウン第1期)1LDK ポーチから玄関 中古住宅・中古一戸建て 伊豆の国市韮山多田(富士見ニュータウン第1期)1LDK 薪ストーブ 中古住宅・中古一戸建て 伊豆の国市韮山多田(富士見ニュータウン第1期)1LDK 1F:リビング 中古住宅・中古一戸建て 伊豆の国市韮山多田(富士見ニュータウン第1期)1LDK 1F:リビング 中古住宅・中古一戸建て 伊豆の国市韮山多田(富士見ニュータウン第1期)1LDK 1F:キッチン 中古住宅・中古一戸建て 伊豆の国市韮山多田(富士見ニュータウン第1期)1LDK 1F:キッチン〜リビング 中古住宅・中古一戸建て 伊豆の国市韮山多田(富士見ニュータウン第1期)1LDK 1F:キッチン〜リビング 中古住宅・中古一戸建て 伊豆の国市韮山多田(富士見ニュータウン第1期)1LDK 1F:小上がり 中古住宅・中古一戸建て 伊豆の国市韮山多田(富士見ニュータウン第1期)1LDK 1F:脱衣所〜浴室 中古住宅・中古一戸建て 伊豆の国市韮山多田(富士見ニュータウン第1期)1LDK 1F:トイレ・浴室 中古住宅・中古一戸建て 伊豆の国市韮山多田(富士見ニュータウン第1期)1LDK 2F:スペース 中古住宅・中古一戸建て 伊豆の国市韮山多田(富士見ニュータウン第1期)1LDK 2F:キッチン 中古住宅・中古一戸建て 伊豆の国市韮山多田(富士見ニュータウン第1期)1LDK 2F:キッチン〜スペース 中古住宅・中古一戸建て 伊豆の国市韮山多田(富士見ニュータウン第1期)1LDK 2F:西側部分 中古住宅・中古一戸建て 伊豆の国市韮山多田(富士見ニュータウン第1期)1LDK 2F:南側部分 中古住宅・中古一戸建て 伊豆の国市韮山多田(富士見ニュータウン第1期)1LDK 2F:ベットスペース(富士山を望む) 中古住宅・中古一戸建て 伊豆の国市韮山多田(富士見ニュータウン第1期)1LDK 2F:ベットスペース(富士山、駿河湾を望む) 中古住宅・中古一戸建て 伊豆の国市韮山多田(富士見ニュータウン第1期)1LDK 2F:駿河湾、大瀬崎を望む 中古住宅・中古一戸建て 三島市佐野見晴台 4SLDK 2F:浴室 中古住宅・中古一戸建て 伊豆の国市韮山多田(富士見ニュータウン第1期)1LDK 2F:吹抜けから見た1Fリビング 中古住宅・中古一戸建て 伊豆の国市韮山多田(富士見ニュータウン第1期)1LDK 2階:吹抜けから見た1F 中古住宅・中古一戸建て 伊豆の国市韮山多田(富士見ニュータウン第1期)1LDK 2F:小屋裏への階段 中古住宅・中古一戸建て 伊豆の国市韮山多田(富士見ニュータウン第1期)1LDK 小屋裏 中古住宅・中古一戸建て 伊豆の国市韮山多田(富士見ニュータウン第1期)1LDK 小屋裏:バルコニーへの通路 中古住宅・中古一戸建て 伊豆の国市韮山多田(富士見ニュータウン第1期)1LDK 小屋裏:バルコニー 中古住宅・中古一戸建て 伊豆の国市韮山多田(富士見ニュータウン第1期)1LDK 小屋裏〜2F 中古住宅・中古一戸建て 伊豆の国市韮山多田(富士見ニュータウン第1期)1LDK 小屋裏〜2Fと1F 中古住宅・中古一戸建て 伊豆の国市韮山多田(富士見ニュータウン第1期)1LDK 小屋裏〜2F 中古住宅・中古一戸建て 伊豆の国市韮山多田(富士見ニュータウン第1期)1LDK 吹抜けの天井 中古住宅・中古一戸建て 伊豆の国市韮山多田(富士見ニュータウン第1期)1LDK 富士見ニュータウン案内図

日当たりの良い敷地に建つ、富士山駿河湾大瀬崎を一望する趣味を楽しむための1LDK

2階と小屋裏まで貫かれたダイナミックな吹抜けは、木の温もりと圧倒的な解放感を感じさせる空間です

伊豆箱根鉄道駿豆線「韮山」駅7.6km車13分・駐車場3台以上可

日当たりの良い敷地に建つ、富士山駿河湾大瀬崎を一望する趣味を楽しむための1LDK

2階と小屋裏まで貫かれたダイナミックな吹抜けは、木の温もりと圧倒的な解放感を感じさせる空間です

伊豆箱根鉄道駿豆線「韮山」駅7.6km車13分・駐車場3台以上可

物件詳細情報

物件名

富士見ニュータウン第1期 中古住宅

築年月日

2014年1月

間取り

1LDK

主要採光面

土地面積

302.00㎡(91.35坪)

建物面積

119.23㎡(36.06坪)

間取詳細

1F:LDK帖・脱衣洗濯室・浴室(トイレ) 2F:スペース帖(キッチン)・浴室(トイレ) 小屋裏

所在地/交通

静岡県伊豆の国市韮山多田(富士見ニュータウン第1期)/伊豆箱根鉄道駿豆線「韮山」駅7.6km車13分

接道状況

南側5.0m公道に接面15.1m

構造

木造2階建

私道負担面積

土地権利

所有権

都市計画

市街化調整区域

用途地域

無指定

地勢

傾斜地

建ぺい率

30%

容積率

60%

地目

山林

国土法届出

他法令制限

セットバック

駐車場

有:3台以上

条件等

現況渡し

現況

所有者居住中

引渡し

相談

建築確認番号

取引態様

媒介

リフォーム

本体設備

電気・上水道・プロパンガス・公共下水道・側溝・庭(10坪以上)・外壁サイディング・隣接建物距離2.0m以上

各戸設備

エアコン2台以上・シャッター雨戸・省エネ給湯器・出窓・全居室フローリング・CATVインターネット
複層ガラス・浴室に窓有・トイレ2ヶ所・IHクッキングヒーター

備考

*週末を過ごす別荘としてはもちろん、昨今の豊かな自然の中でのテレワークにも適する一軒です。
物件から海(口野)まで、車で約19分(約10.0㎞)。マリンレジャーの拠点としても申し分ない立地です。
日中は駿河湾でアクティビティを楽しみ、帰宅後は薪ストーブの炎と共に山の静寂につかる。365日、山と海の両方を主役にする暮らしがここから始まります。
*所有者名義変更料:10,000円・水道:名義変更料:15万円・基本料:1,200円/月(10立米迄)超過料:120円/1立米
下水道:名義変更料:20万円・基本料:1,000円/月(10立米迄)・超過料50円/(1立米)
*本物件は温泉を利用しておりませんが温泉を利用する場合
温泉給受湯:契約金:110万円・給湯保証金:40万円・更新料:20万円/5年毎・使用料:15,000円/月(5立米迄)・超過料:1,000円/(立米)
分譲地管理料:4,000円/月 ※全て税別表記となります。
*土砂災害警戒区域外・津波災害警戒区域外・民泊不可
*建物内部等の掲載写真は、画像を修正しております。居住中のため、建物内に荷物等が有ります。

物件名 富士見ニュータウン第1期 中古住宅
築年月日 2014年1月
間取り 1LDK
土地面積 302.00㎡(91.35坪)
建物面積 119.23㎡(36.06坪)
間取詳細 1F:LDK帖・脱衣洗濯室・浴室(トイレ)
2F:スペース帖(キッチン)・浴室(トイレ)
小屋裏
所在地 静岡県伊豆の国市韮山多田(富士見ニュータウン第1期)
交通 伊豆箱根鉄道駿豆線「韮山」駅7.6km車13分
接道状況 南側5.0m公道に接面15.1m
構造 木造2階建
私道負担面積
土地権利 所有権
都市計画 市街化調整区域
用途地域 無指定
地勢 傾斜地
建ぺい率 30%
容積率 60%
地目 山林
国土法届出
他法令制限
セットバック
駐車場 有:3台以上
条件等 現況渡し
現況 所有者居住中
引渡し 相談
建築確認番号
取引態様 媒介
リフォーム
設備 電気・上水道・プロパンガス・公共下水道・側溝・庭(10坪以上)・外壁サイディング・隣接建物距離2.0m以上
各戸設備 エアコン2台以上・シャッター雨戸・省エネ給湯器・出窓・全居室フローリング・CATVインターネット
複層ガラス・浴室に窓有・トイレ2ヶ所・IHクッキングヒーター・
備考 *週末を過ごす別荘としてはもちろん、昨今の豊かな自然の中でのテレワークにも適する一軒です。
物件から海(口野)まで、車で約19分(約10.0㎞)。マリンレジャーの拠点としても申し分ない立地です。
日中は駿河湾でアクティビティを楽しみ、帰宅後は薪ストーブの炎と共に山の静寂につかる。365日、山と海の両方を主役にする暮らしがここから始まります。
*所有者名義変更料:10,000円・水道:名義変更料:15万円・基本料:1,200円/月(10立米迄)超過料:120円/1立米
下水道:名義変更料:20万円・基本料:1,000円/月(10立米迄)・超過料50円/(1立米)
*本物件は温泉を利用しておりませんが温泉を利用する場合
温泉給受湯:契約金:110万円・給湯保証金:40万円・更新料:20万円/5年毎・使用料:15,000円/月(5立米迄)・超過料:1,000円/(立米)
分譲地管理料:4,000円/月 ※全て税別表記となります。
*土砂災害警戒区域外・津波災害警戒区域外・民泊不可
*建物内部等の掲載写真は、画像を修正しております。居住中のため、建物内に荷物等が有ります。

*「-」と表示されている項目については、お問い合せご確認下さい。
*上記表示物件は、掲載中に契約済、契約中止、あるいは価格変更となる場合があります。
*詳細は弊社までお問い合わせ下さい。掲載情報と現況が異なる場合は現況が優先となります。
*取引態様の欄に「媒介(仲介)」と表示された物件は「仲介物件」ですので、販売価格の他に仲介手数料が必要となります。

*「-」と表示されている項目については、お問い合せご確認下さい。
*上記表示物件は、掲載中に契約済、契約中止、あるいは価格変更となる場合があります。
*詳細は弊社までお問い合わせ下さい。掲載情報と現況が異なる場合は現況が優先となります。
*取引態様の欄に「媒介(仲介)」と表示された物件は「仲介物件」ですので、販売価格の他に仲介手数料が必要となります。

アクセスマップ

*所在地についてはお問合せください

伊豆箱根駿豆線「韮山」駅

伊豆箱根駿豆線「韮山」駅

7.6km/車13分

マックスバリュ韮山店

マックスバリュ韮山店

6.6km/車11分

ファミリーマート伊豆の国四日町店

ファミリーマート伊豆の国四日町店

7.1klm/車12分

静岡銀行韮山支店

静岡銀行韮山支店

7.3km/車13分